ID 1024710 • Prodaja •  Stan

Čukarica, Čukarička padina - Strugarska, 74m2

Strugarska, Čukarička padina, Čukarica, Beograd
Cena
210.000 €
2.838 €/m²
Podeli oglas
Osnovni podaci
Šifra oglasa:
22936
Kvadratura
74 m²
Broj Soba
2.5
Sprat
3
Ukupna spratnost
7
Tip objekta
Starogradnja
Godina izgradnje
1980
Datum
2026-01-16
Grejanje
CG
Opremljenost
Lodja Klima Lift Podrum Interfon
Dodatne informacije
Uknjižen
Opis

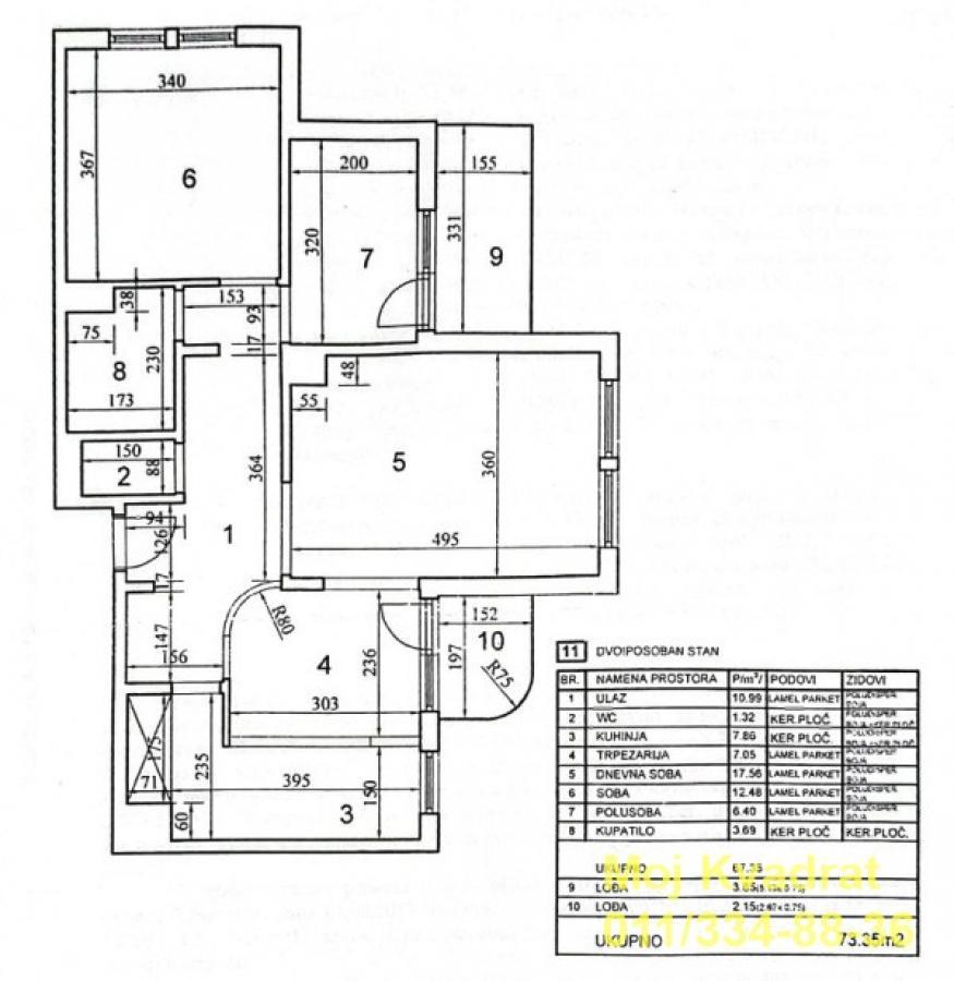
Čukarica, Čukarička padina - Strugarska 2.5, 74m2 (dve lođe 7m2), 3/7, CG, inverter klime, lift, interfon, podrum U ponudi izvorno dvoiposoban stan na trećem spratu od ukupno sedam na odličnoj lokaciji u zgradi iz 1980-ih godina sa liftom, centralnim grejanjem i urednim ulazom. Stan je izuzetno svetao, dvostrano orijentisan i sa odličnim rasporedom prostorija. Stan je korišćen kao kancelarijski prostor i adaptiran je tako da ima četiri odvojene kancelarije (prostorije), predsoblje, kuhinju, dve lođe, kupatilo i toalet. Zamenjena je stolarija sa kvalitetnim PVC profilima (sa roletnama), kao i sigurnosna vrata. Lamelni parket je prekriven laminatom zbog lakšeg održavanja, ali može da se vrati u pređašnje stanje. Kupatilo i toalet su za sređivanje. Centralno grejanje je odjavljeno , s tim da su vertikale i dalje tople i stan se greje sa inverter klimama. Postoji mogućnost ponovnog priključenja na centralno grejanje. Odličan za kancelarijski prostor ali i za stambeni (uz minimalne adaptacije). Uknjižen na 74m2 građevinske i 67m2 korisne površine. Agencijska provizija 2% Agent: Jasmina Veljić 063/204-494 (licenca br.959)

Prikaži više
Lokacija
Lokacija na mapi
Klikni na mapu da je aktiviraš

Kontakt ograšivača

Prilikom poziva naglasite da ste oglas videli na sajtu ČUVARKUĆA Šifra oglasa: 22936
Pozovi oglašivača
Slični oglasi