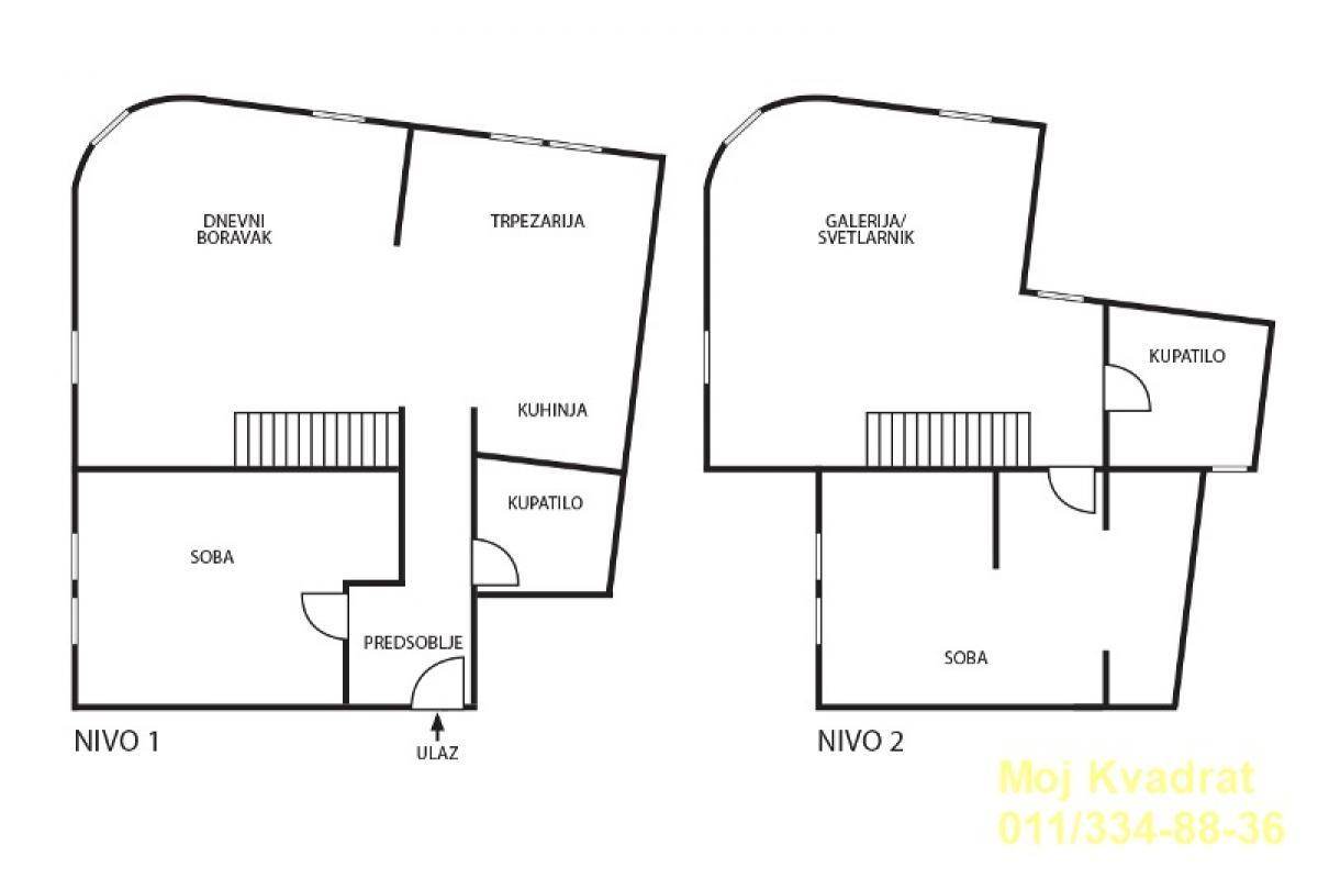
Savski venac, centar - Karađorđeva 3.0, 150m2, 3/3, EG, telefon, interfon Atraktivno potkrovlje na prestižnoj lokaciji. Stan se izdaje prazan, a postoji mogućnost opremanja po želji zakupca uz korekciju cene. Pogodan je i kao poslovni prostor. Izdaje se isključivo na duži vremenski period. Obavezan depozit! Slobodan od 01. decembra 2025. godine. Agencijska provizija po Opštim uslovima poslovanja. Agent: Igor Bambić 063/20-99-33 (licenca br.403)
Prikaži više