ID 1072334 • Izdavanje •  Poslovni prostor
Galerija (4)

Savski venac, Slavija - Vojvode Milenka, 310m2

Vojvode Milenka, Slavija, Vračar, Beograd
Cena
4.500 €
15 €/m²
Podeli oglas
Osnovni podaci
Šifra oglasa:
23173
Kvadratura
310 m²
Sprat
PR
Ukupna spratnost
4
Tip objekta
Novogradnja
Datum
2026-05-05
Opis

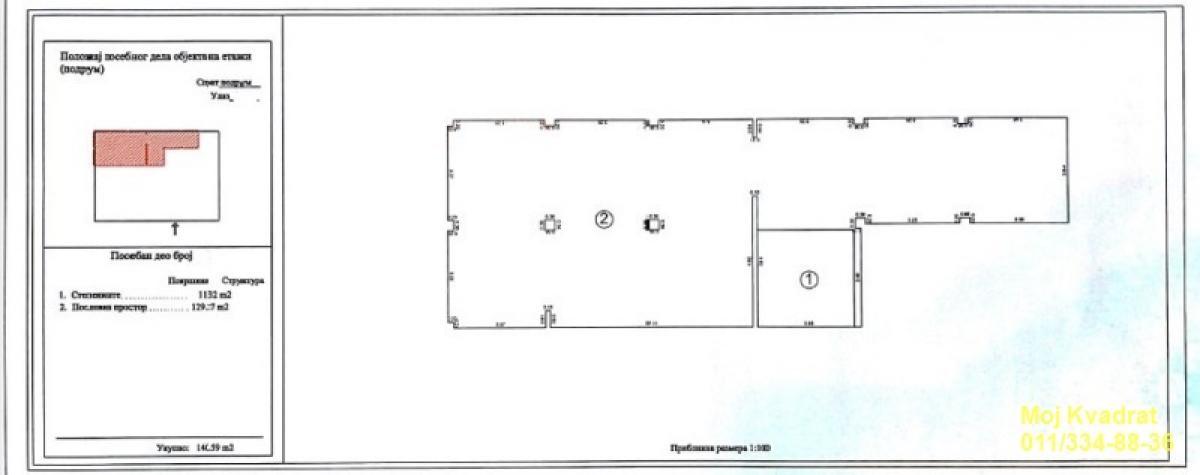
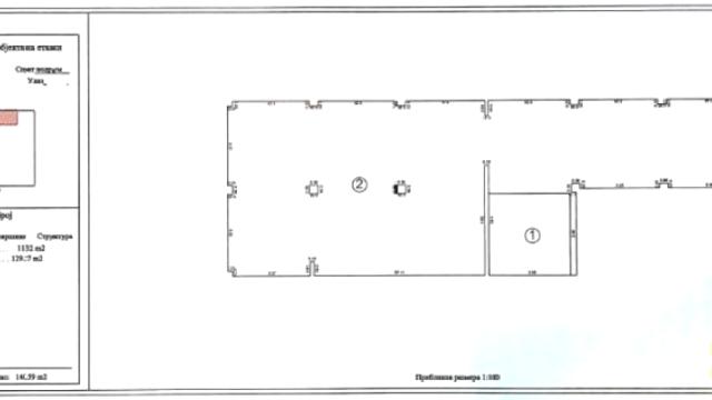
SAVSKI VENAC / SLAVIJA – UGOSTITELJSKI LOKAL SA DVE BAŠTE (310 m²) Izdaje se ekskluzivan ugostiteljski lokal ukupne površine oko 310 m² na odličnoj lokaciji u zoni Slavija / Savski venac. Struktura: • Prizemlje 177 m² – visoki plafoni, otvoren prostor • Suteren cca 130 m² – muški i ženski toaleti, pomoćne prostorije • Dve bašte – ulično orijentisana i dvorišna Prednosti lokala: • Profesionalna ventilacija za kuhinju i ceo lokal • Pogodno za restoran, kafić, lounge bar ili franšizu • Frekventna i atraktivna lokacija U cenu je uključen i inventar. Agencijska provizija u skladu sa Opštim uslovima poslovanja. SAVSKI VENAC / SLAVIJA – RESTAURANT SPACE WITH TWO GARDENS (310 sqm) Premium hospitality space for rent, total area approx. 310 sqm, located in the Slavija / Savski Venac area. Layout: • Ground floor 177 sqm – high ceilings, open space • Basement approx. 130 sqm – male & female restrooms, storage and service rooms • Two garden areas – street front and courtyard Key features: • Professional ventilation system for kitchen and entire space • Suitable for restaurant, café, lounge bar or franchise concept • Busy and attractive location Inventory is included in the price. Agency commission according to the General business conditions. САВСКИ ВЕНАЦ / СЛАВИЯ – РЕСТОРАННОЕ ПОМЕЩЕНИЕ С ДВУМЯ ТЕРРАСАМИ (310 м²) Сдается в аренду ресторанное помещение общей площадью около 310 м² в районе Славия / Савски Венац. Структура: • Первый этаж 177 м² – высокие потолки, открытое пространство • Цоколь около 130 м² – мужской и женский туалеты, подсобные помещения • Две террасы – уличная и во двор Преимущества: • Профессиональная вентиляция для кухни и всего помещения • Подходит для ресторана, кафе, lounge bar или франшизы • Оживленная и престижная локация Товар в наличии включен в цену. Комиссия агентства выплачивается в соответствии с Общими условиями.

Prikaži više
Lokacija
Lokacija na mapi
Klikni na mapu da je aktiviraš

Kontakt ograšivača

Prilikom poziva naglasite da ste oglas videli na sajtu ČUVARKUĆA Šifra oglasa: 23173
Pozovi oglašivača