ID 800056 • Prodaja •  Stan
Galerija (4)

Moderan stan u centru Jagodine - Mogućnost plaćanja na rate

Jagodina, Centar, Grad, Jagodina
Cena
90.000 €
1.500 €/m²
Podeli oglas
Osnovni podaci
Šifra oglasa:
8982
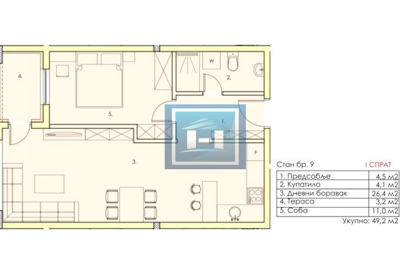
Kvadratura
61 m²
Broj Soba
3.0
Sprat
6
Ukupna spratnost
6
Tip objekta
Novogradnja
Godina izgradnje
2025
Datum
2026-04-15
Grejanje
Gas Podno
Opremljenost
Terasa Lift
Opis

Obaveštavamo vas da je započet novi projekat novogradnje. Iskoristite mogućnost plaćanja na rate, kao i mogućnost povraćaja PDV-a i uštedite i do 7.700 evra kupovinom ovog stana. Ova moderna zgrada u centru Jagodine nudi savremene životne uslove u mirnoj lokaciji, blizu svih važnih sadržaja – savršena za kvalitetan život i sigurnu investiciju. Karakteristike Zgrade: Savremena arhitektura sa velikim prozorima i prirodnim svetlom. Raznovrsne stambene jedinice: od jednosobnih do trosobnih stanova, prilagođenih različitim potrebama. Visokokvalitetni materijali: dugotrajan građevinski materijal i moderni enterijeri. Sadržaji: Lift i pristupačnost: prostrani lift i prilazi za osobe sa smanjenom pokretljivošću. Parking i garaže: sigurno parkiranje. Energetska efikasnost: termoizolacija, energetski efikasna stolarija i savremeni sistemi grejanja preko kotla na gas za veće stambene jedinice dok je za sve stambene jedinice ispod 50m2 predviđen kotao na struju. Grejanje je podno, u dnevnom boravku je predviđena keramika prve klase do je u spavaćim sobama predviđen tarket parket. - šestokomorna PVC stolarija sa alu roletnama i 3 stakla za bolju zvučnu i toplotnu izolaciju. - spoljna izolacija, tvrdopresovani stiropor 10cm - termo blok 40cmx25cm - sopstveni vodomer. Lokacija: U mirnom delu grada, blizu škole, marketa i kulturnih sadržaja. Dobra povezanost sa saobraćajnicama i javnim prevozom. Završetak radova - jul 2026. godine. Investicija: Cena: 1400 evra/m2 sa PDV-om Kvalitet gradnje i atraktivna lokacija čine ovu kupovinu sigurnom investicijom. Kontaktirajte nas za više informacija i obilazak gradilišta!

Prikaži više
Lokacija
Lokacija na mapi
Klikni na mapu da je aktiviraš

Kontakt ograšivača

Prilikom poziva naglasite da ste oglas videli na sajtu ČUVARKUĆA Šifra oglasa: 8982
Pozovi oglašivača