ID 969497 • Izdavanje •  Poslovni prostor
Galerija (2)

Njegoševa

Njegoševa, Beograd
Cena
6.000 €
56 €/m²
Podeli oglas
Osnovni podaci
Šifra oglasa:
No data
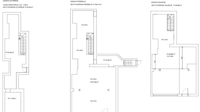
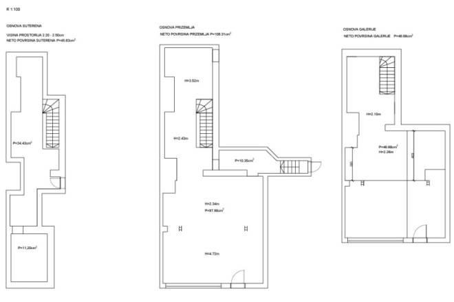
Kvadratura
107 m²
Broj Soba
3.0
Sprat
PR
Ukupna spratnost
6
Stanje objekta
Izvorno
Tip objekta
Starogradnja
Datum
2025-10-14
Grejanje
EG
Opremljenost
Klima KATV Internet Interfon
Dodatne informacije
Uknjižen Depozit
Opis

U samom srcu Beograda, na jednoj od najatraktivnijih lokacija – Njegoševoj ulici, sa direktnim pogledom na Mitićevu rupu, izdaje se lokal od 200 m2, izuzetnog potencijala za razvoj ugostiteljskog objekta ili drugog komercijalnog sadržaja. Prostor se prostire na tri nivoa: prizemlje (107 m2) sa visinom plafona gotovo 5 m, idealno za prostor za sedenje, šank i izlog prema ulici; galerija (47 m2) koja može služiti kao dodatni deo za goste; i podrum (45 m2) predviđen za kuhinju, toalete i tehničke prostorije. Postoji mogućnost formiranja bašte od oko 50 m² na trotoaru ispred lokala, što ovaj prostor čini posebno pogodnim za restoran, bistro, kafić ili kafeteriju. Lokal je u izvornom stanju, ali deo radova je već započet u pravcu opremanja za ugostiteljsku namenu. Zakupac može ostvariti kompenzaciju ulaganja kroz umanjenje zakupnine, što omogućava prilagođavanje prostora sopstvenom konceptu i estetici. Zahvaljujući izuzetnoj frekvenciji prolaznika, odličnoj vidljivosti i centralnoj lokaciji, ovaj lokal predstavlja savršenu priliku za brend koji želi prepoznatljivo i prometno mesto u Beogradu. Posrednička naknada se obračunava u skladu sa Opštim uslovima poslovanja agencije "DIVIS NEKRETNINE" d.o.o.

Prikaži više
Lokacija
Lokacija na mapi
Klikni na mapu da je aktiviraš

Kontakt ograšivača

Prilikom poziva naglasite da ste oglas videli na sajtu ČUVARKUĆA
Pozovi oglašivača