ID 970938 • Prodaja •  Poslovni prostor

Palilula, Palilulska pijaca - 27. marta, 105m2

27. marta, Palilulska pijaca, Palilula, Beograd
Cena
430.500 €
4.100 €/m²
Podeli oglas
Osnovni podaci
Šifra oglasa:
22765
Kvadratura
105 m²
Broj Soba
2.0
Sprat
1
Ukupna spratnost
4
Tip objekta
Novogradnja
Datum
2026-02-13
Grejanje
CG
Opremljenost
Interfon
Dodatne informacije
Uknjižen
Opis

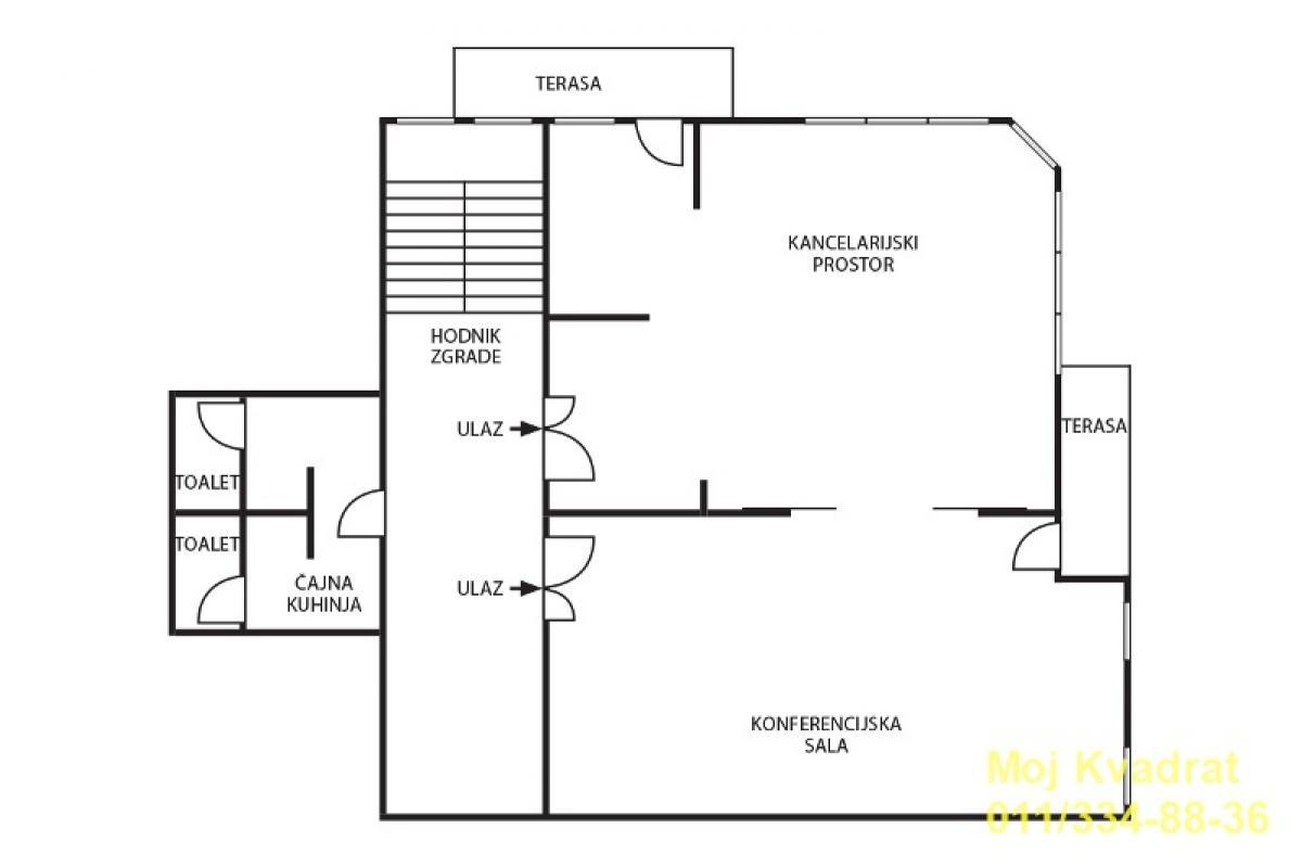
Palilula, Palilulska pijaca - 27. marta poslovni prostor, 2.0, 105m2, dve terase, 1/4, CG, interfon U ponudi za prodaju poslovni prostor u poslovnom delu zgrade površine 105m2. Sastoji se od sale za sastanke i velike kancelarije. Takođe, poseduje toalet, kao i dve terase. Prodaje sa namešten sa svim kancelarijskim nameštajem. Uknjižen na 105m2. Agencijska provizija 2% Agent: Nemanja Đoković 066/57-52-212 (licenca br.5118)

Prikaži više
3D Prezentacija
Lokacija
Lokacija na mapi
Klikni na mapu da je aktiviraš

Kontakt ograšivača

Prilikom poziva naglasite da ste oglas videli na sajtu ČUVARKUĆA Šifra oglasa: 22765
Pozovi oglašivača