ID 1001633 • Prodaja •  Stan
Galerija (1)

NOVI STANOVI – MODERNA GRADNJA, MIRNA LOKACIJA, POUZDAN INVESTITOR

Jagodina, Centar, Grad, Jagodina
Cena
84.240 €
1.359 €/m²
Podeli oglas
Osnovni podaci
Šifra oglasa:
9859
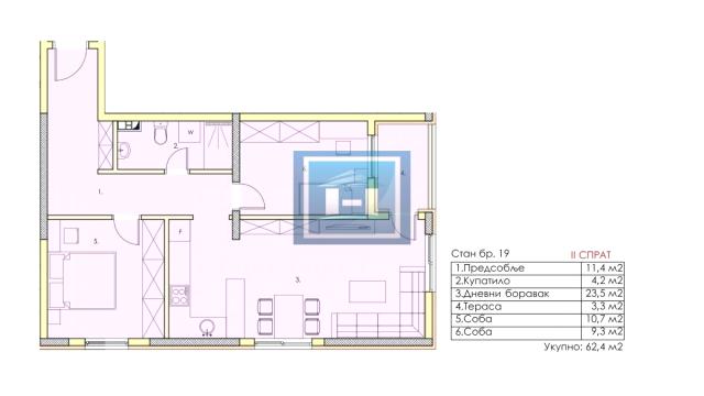
Kvadratura
62 m²
Broj Soba
3.0
Sprat
2
Ukupna spratnost
5
Tip objekta
Novogradnja
Godina izgradnje
2026
Datum
2025-12-06
Grejanje
Gas Podno
Opremljenost
Terasa Lift
Opis

Započeta je izgradnja nove stambene zgrade koja objedinjuje moderan dizajn, funkcionalnost i udobnost savremenog života. U ponudi su stanovi različitih struktura i kvadratura – od 31,6m² do 67,4m², idealni kako za mlade parove i pojedince, tako i za porodice koje žele mir, sigurnost i kvalitetan dom. Cena: 1.350 €/m² sa PDV-om Parking mesto uključeno u cenu! Mogućnost kupovine garažnog mesta u podrumu zgrade! KVALITET I SIGURNOST KOJI SE OSEĆAJU Gradnja se izvodi po najvišim standardima: • Termo blok + stiropor izolacija 10cm – odlična toplotna i zvučna zaštita • Podno grejanje – keramika na podovima za savršen komfor • Grejanje na gas za stanove preko 50m², kotao na struju za manje stanove • Ugrađen vodomer i visoka energetska efikasnost • Klima uređaj u svakom stanu • Lift u zgradi • PVC stolarija vrhunskog kvaliteta i alu roletne sa elektro podizačima LOKACIJA KOJA NUDI MIR I BLIZINU SVEGA Zgrada se nalazi u mirnom delu grada, savršenom za porodičan život, a ipak na samo 500 metara od centra. Bolnica, škole, marketi, apoteke, pošta i svi bitni sadržaji nalaze se u neposrednoj blizini – sve što vam je potrebno, dostupno je pešice. ZAŠTO OVAJ PROJEKAT? ✔ Pouzdan investitor sa iskustvom ✔ Izuzetna energetska efikasnost i niski troškovi održavanja ✔ Parking mesto obezbeđeno uz svaki stan, osim za garsonjere ✔ Mogućnost kupovine garaže ✔ Savršena kombinacija kvaliteta, lokacije i cene ✔ Odlična investicija – i za život i za izdavanje Useljenje po završetku radova, a rezervacije su već u toku! Ne čekajte – rezervišite svoj novi dom na vreme! 064/8-312-063 065/8-222-441 035/8-222-441

Prikaži više
Lokacija
Lokacija na mapi
Klikni na mapu da je aktiviraš

Kontakt ograšivača

Prilikom poziva naglasite da ste oglas videli na sajtu ČUVARKUĆA Šifra oglasa: 9859
Pozovi oglašivača