ID 1013267 • Prodaja •  Stan
Galerija (6)

Prodaja apartmana na Zlatiboru – Savršen spoj prirode i luksuza!

Zlatibor, Zlatibor
Cena
54.450 €
1.650 €/m²
Podeli oglas
Osnovni podaci
Šifra oglasa:
8988
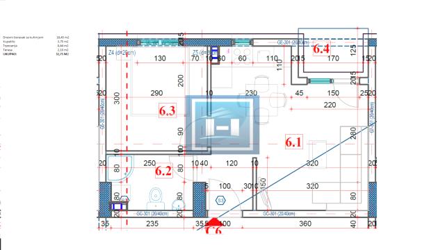
Kvadratura
33 m²
Broj Soba
1.0
Sprat
4
Ukupna spratnost
7
Tip objekta
U izgradnji
Godina izgradnje
2024
Datum
2025-12-26
Opis

Na jednoj od najlepših lokacija na Zlatiboru, u mirnom i zelenom okruženju, u toku je gradnja modernog kompleksa luksuznih apartmana. Planirani završetak gradnje je u prvoj polovini 2026. godinje, što znači da ćete uskoro moći da uživate u svom novom domu na ovoj popularnoj planinskoj destinaciji. U ponudi se nalaze četiri nova apartmana, smeštena na četvrtom spratu. Apartmani su savršeno dizajnirani, sa funkcionalnim rasporedom, visokim standardima opreme i modernim enterijerom. Svaki apartman je osmišljen da pruži maksimalan komfor i udobnost. U pitanju su: Stan broj 22 – 33m² Stan broj 23 – 41m² Stan broj 24 – 33m² Stan broj 25 – 31m² Pored savremene gradnje, objekat se nalazi u neposrednoj blizini svih značajnih sadržaja – restorana, kafića, kao i pešačkih staza za ljubitelje prirode. Ne propustite priliku da postanete vlasnik apartmana na najlepšoj planinskoj destinaciji. Kontaktirajte nas za više informacija i rezervišite svoj apartman još danas! Za više informacija i dogovor oko obilaska, slobodno nas kontaktirajte putem navedenih brojeva telefona. 064-831-20-81 064/831-20-64 035/81-02-321 ili možete doći u agenciju Heroldo broj 1

Prikaži više

Kontakt ograšivača

Prilikom poziva naglasite da ste oglas videli na sajtu ČUVARKUĆA Šifra oglasa: 8988
Pozovi oglašivača