ID 1054942 • Izdavanje •  Stan

Savski venac, centar - Karađorđeva, 150m2

Karađorđeva, Centar, Savski venac, Beograd
Cena
1.900 €
13 €/m²
Podeli oglas
Osnovni podaci
Šifra oglasa:
21441
Kvadratura
150 m²
Broj Soba
3.0
Sprat
3
Ukupna spratnost
3
Datum
2026-02-27
Grejanje
EG
Opremljenost
Telefon Interfon
Opis

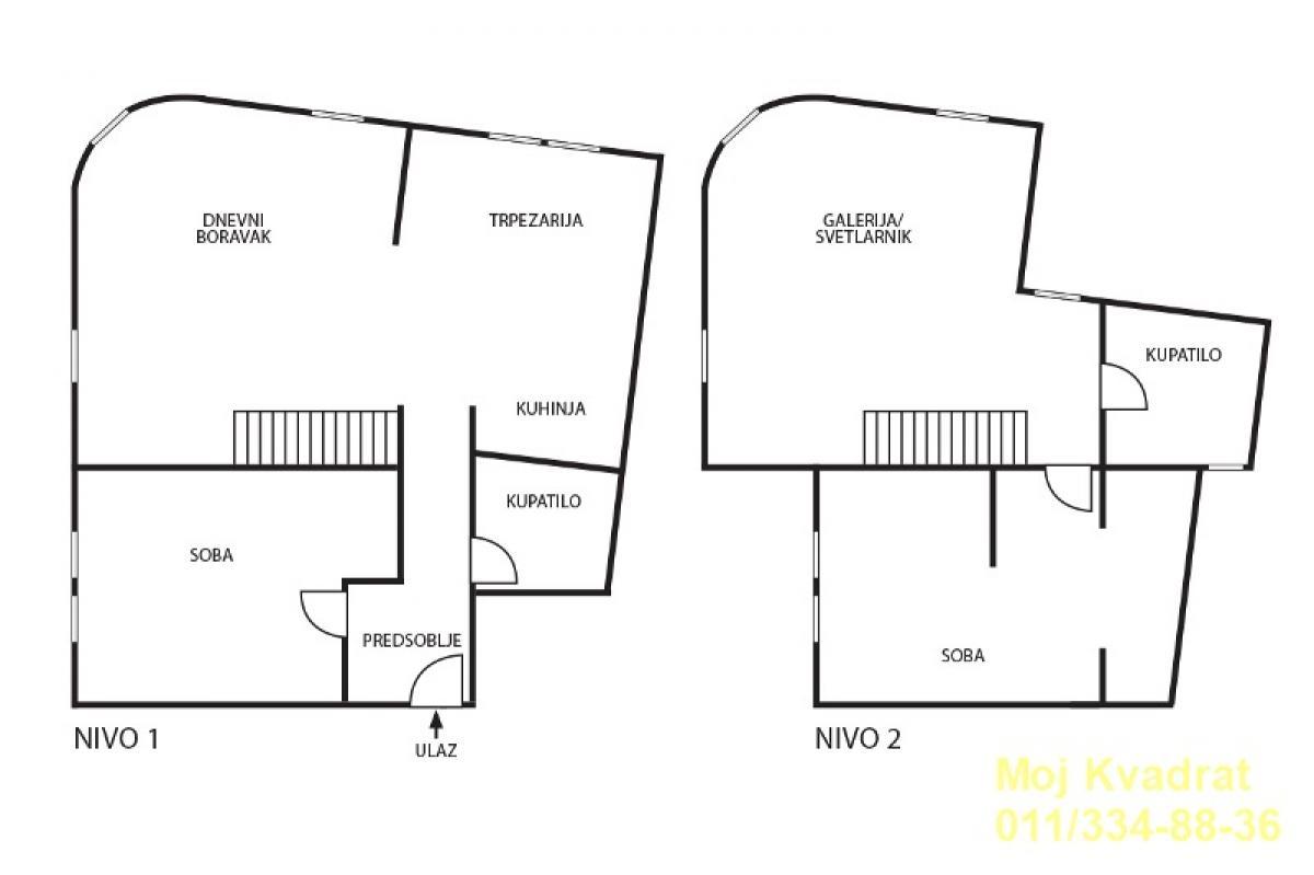
Savski venac, centar - Karađorđeva 3.0, 150m2, 3/3, EG, telefon, interfon Atraktivno potkrovlje na prestižnoj lokaciji. Stan se izdaje prazan, a postoji mogućnost opremanja po želji zakupca uz korekciju cene. Pogodan je i kao poslovni prostor. Izdaje se isključivo na duži vremenski period. Obavezan depozit! Slobodan od 01. decembra 2025. godine. Agencijska provizija po Opštim uslovima poslovanja. Agent: Igor Bambić 063/20-99-33 (licenca br.403)

Prikaži više
3D Prezentacija
Lokacija
Lokacija na mapi
Klikni na mapu da je aktiviraš

Kontakt ograšivača

Prilikom poziva naglasite da ste oglas videli na sajtu ČUVARKUĆA Šifra oglasa: 21441
Pozovi oglašivača