ID 1064634 • Izdavanje •  Poslovni prostor

Savski venac, centar - Karađorđeva, 150m2

Karađorđeva, Centar, Savski venac, Beograd
Cena
1.900 €
13 €/m²
Podeli oglas
Osnovni podaci
Šifra oglasa:
21781
Kvadratura
150 m²
Broj Soba
3.0
Sprat
3
Ukupna spratnost
3
Datum
2026-03-13
Grejanje
EG
Opremljenost
Telefon Interfon
Opis

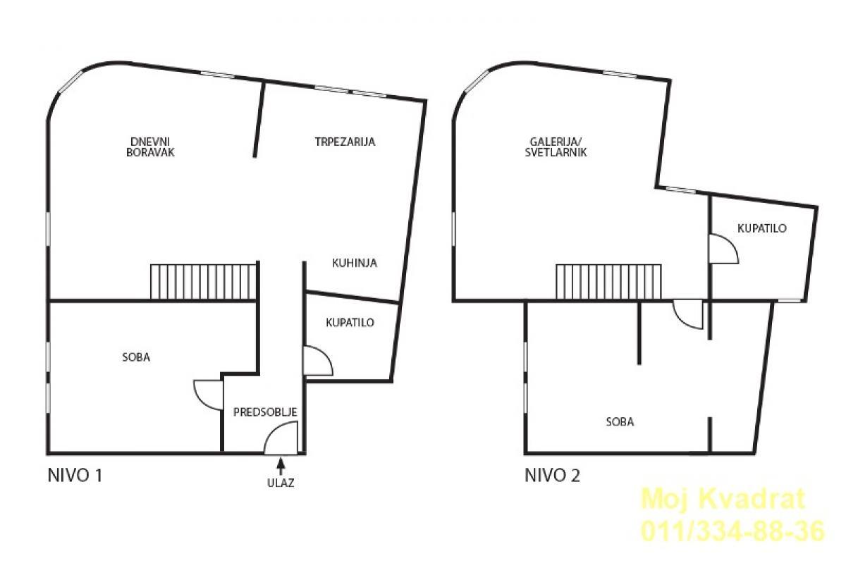
Savski venac, centar - Karađorđeva poslovni prostor, 3.0, 150m2, 3/3, EG, telefon, interfon Atraktivno potkrovlje na prestižnoj lokaciji. Pogodan je i kao stambeni prostor. Izdaje se isključivo na duži vremenski period. Obavezan depozit! Slobodan je od 01. decembra 2025. godine! Agencijska provizija po Opštim uslovima poslovanja. Agent: Igor Bambić 063/20-99-33 (licenca br.403)

Prikaži više
3D Prezentacija
Lokacija
Lokacija na mapi
Klikni na mapu da je aktiviraš

Kontakt ograšivača

Prilikom poziva naglasite da ste oglas videli na sajtu ČUVARKUĆA Šifra oglasa: 21781
Pozovi oglašivača