Nekretnina za koju se interesujete više nije u ponudi

Pogledajte druge oglase u ovoj kategorili: Prodaja - stanova - Jagodina

ID 586181 • Prodaja •  Stan
Galerija (8)

Jednosoban stan u centru Jagodine

Jagodina, Centar, Grad, Jagodina
Cena
25.000 €
1.000 €/m²
Podeli oglas
Osnovni podaci
Šifra oglasa:
7370
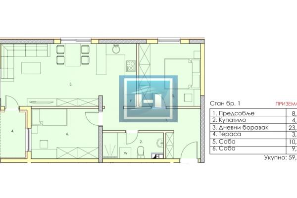
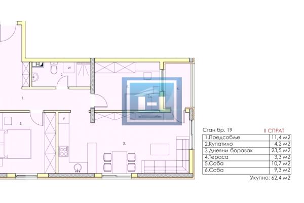
Kvadratura
25 m²
Broj Soba
1.0
Sprat
7
Ukupna spratnost
7
Tip objekta
Starogradnja
Godina izgradnje
2000
Datum
2025-11-07
Grejanje
CG
Opremljenost
Lift Interfon
Opis

U pitanju je manji jednosoban stan koji se sastoji iz spavaće sobe, trpezarije sa kuhinjom, hodika i kupatila. - stan ima pripadajući podrum od 6m2 - Lift - centralno grejanje - sopstveni vodomer - parket - veš mašina i kuhinja ulaze u cenu stana

Prikaži više