ID 637503 • Prodaja •  Stan
Galerija (6)

Fenomenalan Penthaus kod Akva parka sa pogledom na ceo grad

Jagodina, Aqua park, Grad, Jagodina
Cena
246.400 €
1.400 €/m²
Podeli oglas
Osnovni podaci
Šifra oglasa:
8444
Kvadratura
176 m²
Broj Soba
5.0
Sprat
5
Ukupna spratnost
5
Tip objekta
Starogradnja
Datum
2026-04-15
Grejanje
CG
Opremljenost
Klima Lift Video nadzor Parking
Dodatne informacije
Uknjižen Penthouse
Opis

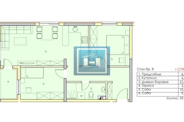
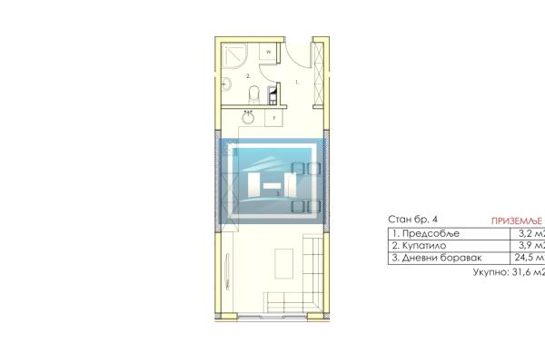
Prodajemo Penthaus koji se nalazi u blizini Akva parka, površine 176m2 u Jagodini. Stan se sastoji iz dva spojena dnevna boravka, četiri spavaće sobe, dva kupatila, i terase površine 30m2. Sa terase je fantastičan pogled na ceo grad!! Stan ima podno grejanje, svoj kalorimetar, bogatu rasvetu na spuštenim plafonima, sahara zidove. Mogućnost kupovine dela nameštaja koji je po meri pravljen za stan. Stan poseduje i parking mesto . Za više informacija nazovite nas!! 064/8-312-063 035/8-222-441 065/8-222-441

Prikaži više
Lokacija
Lokacija na mapi
Klikni na mapu da je aktiviraš

Kontakt ograšivača

Prilikom poziva naglasite da ste oglas videli na sajtu ČUVARKUĆA Šifra oglasa: 8444
Pozovi oglašivača