Nekretnina za koju se interesujete više nije u ponudi

Pogledajte druge oglase u ovoj kategorili: Prodaja - stanova - Jagodina

ID 667549 • Prodaja •  Stan
Galerija (3)

Stanovi u izgradnji Dvosoban Tip 3

Jagodina, Centar, Grad, Jagodina
Cena
95.360 €
1.490 €/m²
Podeli oglas
Osnovni podaci
Šifra oglasa:
8571
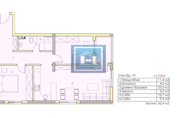
Kvadratura
64 m²
Broj Soba
2.5
Sprat
3
Ukupna spratnost
7
Tip objekta
Novogradnja
Godina izgradnje
2024
Datum
2025-09-02
Grejanje
Gas Podno
Opremljenost
Klima Lift
Opis

Stanovi u izgradnji na par minuta od gradskog jezgra, lokacija koja u potpunosti odgovara modernom načinu života. Stanovi su tipskog karaktera od prvog do šestog sprata. Veoma blizu svih gradskih institucija, omogućava Vam da bez korišćenja vozila završavate sve Vaše obaveze. Sa druge strane udaljeni ste samo par minuta od Vivo šoping centra, Akva parka kao i parka Đurđevo brdo. A opet lokacija koja je pomerena od gradske gužve, što će Vam pružiti mirna i tiha poslepodneva i večeri, kad treba odmoriti od svih dnevnih napora sa kojim se svi u današnje vreme susrećemo. Spoljni zidovi: - Zorka Šabac, klimablok - Stiropor 12cm - Demit Fasada - Dekorativni paneli u dezenu drveta Stolarija: Prozori Rehau Synego 80mm sa Maco okovom. Šestokomorni profili sa tri dihtung gume i tri stakla punjena argonom, sa aluminijumskim roletnama. Kretanje kroz zgradu: - 3 brza KLEEMANN lifta Zvučna izolacija plafona: - Završna podna obloga - Cementni estrih - Parna brana - Kamena vuna 5cm - AB masivna ploča 20cm, Knauf akusto vuna, Knauf Zvučna izolacija zidova: - Pregradni zid između dva stana: Akusto blok 20cm, Knauf akustok vuna 5cm, Knauf. Armirani beton, 20cm, Knauf akustok vuna 5cm, Knauf Grejanje i Hlađenje: - svaki stan ima zasebni gasni kotao - Nema skrivenih dodatnih troškova za grejanje - Moguće je izabrati podno ili radijatorsko grejanje - Svaki stan poseduje sopstveni klima uređaj Podovi: - TARKETT parket, opciono je moguće oblagati podove i keramikom. Povraćaj PDV/a. Sigurna investicija!! Ne čekajte, nazovite nas za više informacija. 035/8-222-441 065/8-222-442

Prikaži više
Lokacija
Lokacija na mapi
Klikni na mapu da je aktiviraš