ID 938981 • Prodaja •  Stan

Na prodaju jednoiposoban stan 49m² – Centar Jagodine

Jagodina, Centar, Grad, Jagodina
Cena
56.000 €
1.143 €/m²
Podeli oglas
Osnovni podaci
Šifra oglasa:
9316
Kvadratura
49 m²
Broj Soba
1.5
Sprat
2
Ukupna spratnost
6
Tip objekta
Starogradnja
Godina izgradnje
1986
Datum
2026-02-23
Grejanje
CG
Opremljenost
Terasa Lodja Podrum Topla voda Parking
Dodatne informacije
Uknjižen
Opis

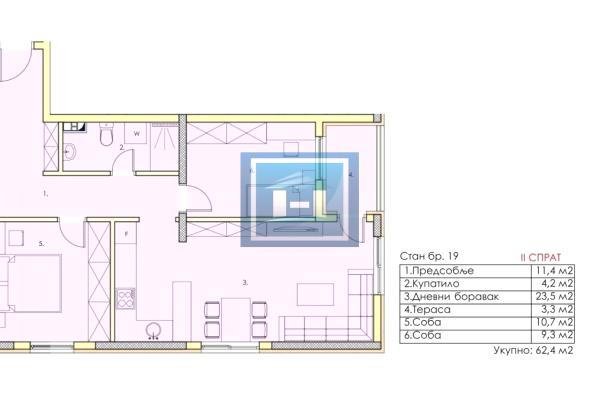
Prodaje se jednoiposoban stan površine 49m², smešten na drugom spratu kvalitetne starogradnje, u samom centru Jagodine. Stan se sastoji od hodnika, kupatila, trpezarije sa kuhinjom, odvojene kuhinje sa izlazom na terasu, prostrane sobe koja se može pregraditi u dve spavaće sobe i koja takođe ima izlaz na drugu terasu. Stan ima centralno grejanje, pripadajući podrum, i dvostranu orijentaciju, sa pogledom na glavnu ulicu. Izuzetna lokacija – u neposrednoj blizini svih važnih sadržaja: prodavnica, škola, pijace, apoteka, gradskog prevoza. Idealno kako za život, tako i za izdavanje. Za više informacija i razgledanje, pozovite!

Prikaži više
Lokacija
Lokacija na mapi
Klikni na mapu da je aktiviraš

Kontakt ograšivača

Prilikom poziva naglasite da ste oglas videli na sajtu ČUVARKUĆA Šifra oglasa: 9316
Pozovi oglašivača