ID 966460 • Prodaja •  Poslovni prostor

Palilula, Botanička bašta - Vojvode Dobrnjca, 99m2

Vojvode Dobrnjca, Botanička bašta, Palilula, Beograd
Cena
489.000 €
4.939 €/m²
Podeli oglas
Osnovni podaci
Šifra oglasa:
22748
Kvadratura
99 m²
Sprat
PR
Ukupna spratnost
6
Datum
2025-10-09
Grejanje
CG Podno
Opremljenost
Klima Internet Video nadzor
Dodatne informacije
Uknjižen
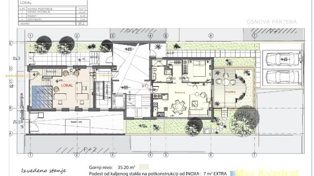
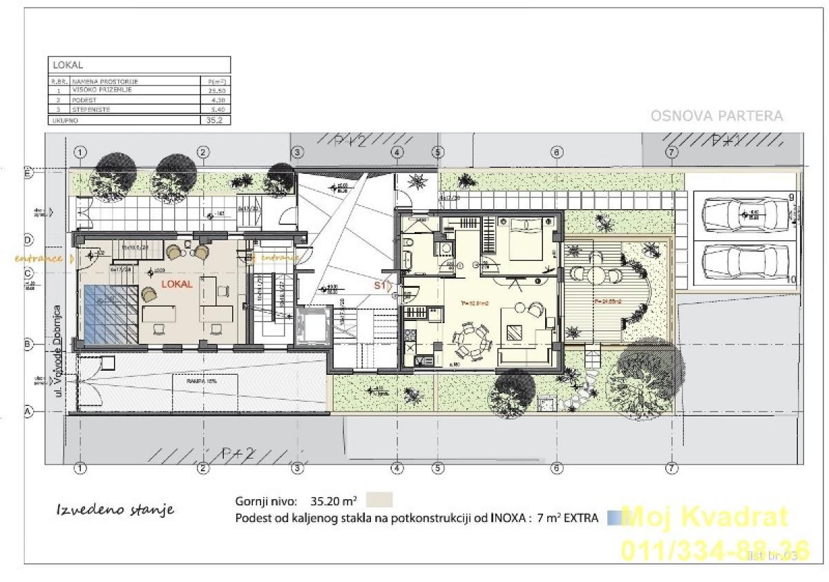
Opis

Palilula, Botanička bašta - Vojvode Dobrnjca lokal, 99m2, prizemlje, CG, podno grejanje, tri klime, internert, alarm, sigurnosne kamere, izlog Prodaje se moderan, luksuzan i opremljen lokal ukupne površine 99 m² (92 m² uknjiženo + 7 m² stakleni podest), sa dva ulaza i reprezentativnim izlogom od kaljenog stakla (nosivost 2T). Lokal je na dve etaže, kompletno renoviran, idealan za kancelarije, showroom, salon ili studio. Enterijer: • MDF kuhinja sa belom tehnikom • Luksuzno kupatilo • Ugradni plakari i garderober sa rasvetom • Ostava Grejanje i hlađenje: • Grejanje na toplovod • Podno grejanje (lokal + trotoar) • Tri klima uređaja LG ARTCOOL Stylist Inverter Tehnika i sigurnost: • SBB internet, podni izvodi za IT opremu • BOSE 5.1 audio sistem • Light design, alarm i sigurnosne kamere Uknjižen na 92m2. Agencijska provizija 2% Agent: Lazar Karadžić 065/36-02-507 (licenca br.3343)

Prikaži više

Kontakt ograšivača

Prilikom poziva naglasite da ste oglas videli na sajtu ČUVARKUĆA Šifra oglasa: 22748
Pozovi oglašivača
Slični oglasi