Nekretnina za koju se interesujete više nije u ponudi

Pogledajte druge oglase u ovoj kategorili: Prodaja - stanova - Jagodina

ID 973121 • Prodaja •  Stan

Ekskluzivan stan s pogledom na grad i stadion u kompleksu Crnjanski

Jagodina, Aqua park, Grad, Jagodina
Cena
105.000 €
1.364 €/m²
Podeli oglas
Osnovni podaci
Šifra oglasa:
8812
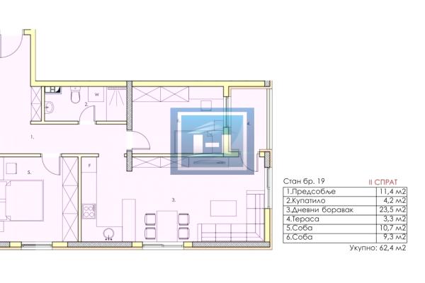
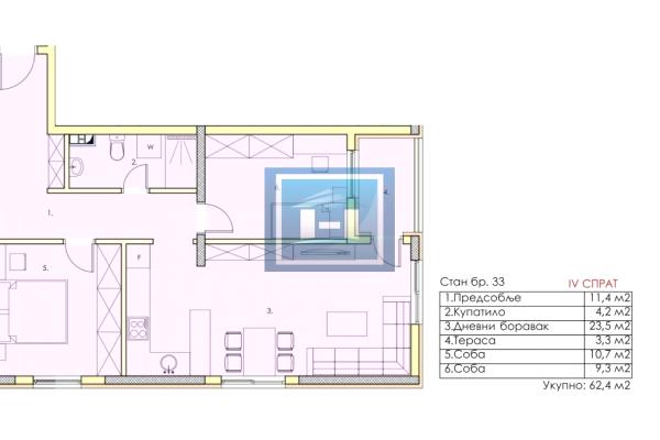
Kvadratura
77 m²
Broj Soba
2.0
Sprat
4
Ukupna spratnost
6
Tip objekta
Novogradnja
Godina izgradnje
2022
Datum
2026-03-12
Grejanje
CG
Opremljenost
Terasa Klima Lift Topla voda Interfon Video nadzor Bazen
Dodatne informacije
Odmah useljiv
Opis

U elitnom Crnjanski kompleksu u Jagodini, prodaje se luksuzan stan površine 77m², koji pruža udobnost i prestiž savršen za moderan život. Stan se sastoji od prostranog dnevnog boravka, moderne kuhinje i trpezarije, dve spavaće sobe, kupatila, kao i dve prelepe terase idealne za opuštanje i uživanje u pogledu na stadion i grad. Ono što ovaj stan izdvaja je pristup bazenu, što pruža dodatni luksuz i ekskluzivnost. Zgrada je savremeno opremljena i locirana u mirnom delu grada, blizu svih ključnih sadržaja. Podna obloga Granit Alu stolarija Ako i Vi želite Luksuzan stan u još luksuznijem kompleksu pozovite nas.

Prikaži više
Lokacija
Lokacija na mapi
Klikni na mapu da je aktiviraš