ID 1003987 • Prodaja •  Stan

NOVI SAD, VETERNIK - NOVOGRADNJA - TROSOBAN-USELJIV

Novi Sad, Veternik, Novi Sad, Novi Sad
Cena
106.700 €
1.749 €/m²
Podeli oglas
Osnovni podaci
Šifra oglasa:
80
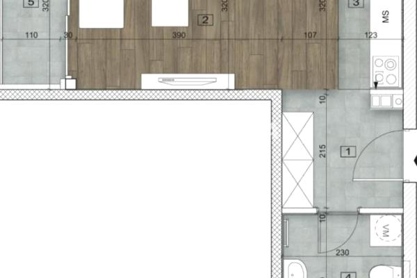
Kvadratura
61 m²
Broj Soba
3.0
Sprat
2
Ukupna spratnost
2
Tip objekta
Novogradnja
Godina izgradnje
2025
Datum
2026-02-27
Grejanje
Podno
Opremljenost
Terasa KATV Internet Interfon
Opis

ID 80 Agencija AURORA 369 nekretnine nudi u prodaju trosoban stan, 60,93m2 u novogradnji. Novi Sad, Veternik. Useljiv. Pravi porodični stan sa dva sanitarna čvora. Grejanje je podno, svoj kotao. Lokacija, blizu ulice Ive Lole Ribara. Svaki stan ima svoje parking mesto. Podno grejanje. Svaki stan ima svoj kotao. Keramika dole. Za više informacija i zakazivanje gledanja, pozovite nas na: 061/300-99-59 Aurora 369 Nekretnine Registarski broj posrednika 1971

Prikaži više

Kontakt ograšivača

Prilikom poziva naglasite da ste oglas videli na sajtu ČUVARKUĆA Šifra oglasa: 80
Pozovi oglašivača