ID 964693 • Prodaja •  Stan

Savski venac, Beograd na vodi - BW Perla, 148m2 - DIREKTAN POGLED NA REKU - BISER PRESTIŽA

BW Perla, Beograd na vodi, Savski venac, Beograd
Cena
926.888 €
6.263 €/m²
Podeli oglas
Osnovni podaci
Šifra oglasa:
21829
Kvadratura
148 m²
Broj Soba
4.0
Sprat
12
Ukupna spratnost
25
Tip objekta
Novogradnja
Godina izgradnje
2024
Datum
2025-10-05
Grejanje
CG
Opremljenost
Terasa Lift Telefon Interfon Garaža Bazen
Opis

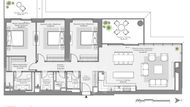
Savski venac, Beograd na vodi - BW Perla - DIREKTAN POGLED NA REKU - BISER PRESTIŽA 4.0, 148m2 (dve terase 23m2), 12/25, CG, lift, telefon, interfon, garaža, bazen Zamislite da svoj dan započnete mirnim jutrom pored reke, podelite dragocene trenutke sa porodicom, a zatim ga nastavite uz luksuznu kupovinu sa prijateljima. Zgrada se nalazi na prvoklasnoj lokaciji uz reku, sa direktnim izlazom na Sava Promenadu i uz Kulu Beograd, novi simbol grada. U neposrednoj je blizini zgrada BW Residences, BW Terraces i BW Riviera. Nudimo Vam izuzetan četvorosoban stan u zgradi BW PERLA sa direktnim pogledom na reku. Stan ima dve terase sa prelepim pogledima ka reci i ka Kalemegdanu. Master spavaćoj sobi pripada zasebna terasa, dok izuzetno komforna dnevna “open space” zona ima drugu, prostraniju. Svako zrno bisera priča je za sebe, jedinstveni dar prirode koji oplemenjuje život. Dobro došli u BW Perlu, jedinstveni odraz vašeg života za sva vremena! Impresivna zgrada od 25 spratova je idealno okruženje za zdrav i aktivan život. Stanari na raspolaganju imaju širok izbor pogodnosti, uključujući i wellness centar sa bazenom, teretanom i spa prostorom. U blizini su i rekreativni sadržaji na otvorenom — biciklističke staze kroz ceo projekat, 700 metara dugačka džoging staza oko Savskog parka, teretana pod vedrim nebom i brojne mogućnosti za šetnju i vožnju rolera. Oni koji više vole opuštanje u mirnom okruženju, uživaće u uređenom unutrašnjem dvorštu sa fontanom koja ih zaklanja od javnih prostora. Uz kupovinu stana moguća je kupovina dva garažna mesta. Očekivani rok završetka radova: novembar 2025. Karakteristike: ♦ Ulazni lobi sa recepcijom i obezbeđenjem, odvojena prostorija sa poštanskim sandučićima, stanica za čišćenje kućnih ljubimaca, ostava za dečija kolica, sistem za odlaganje smeća, ♦ Podzemna garaža na dva nivoa sa parkingom za bicikle, ♦ Koncept otvorene kuhinje, višeslojni drveni pod u sobama, ♦ Prozori od poda do plafona u svakoj prostoriji, prozori od zida do zida u dnevnim sobama, ♦ Pločice na podu i zidovima u kupatilu i podu u kuhinji, ♦ Kupatilo opremljeno sanitarijama, ugradna tuš kabina sa staklenim paravanom, akrilne kade, ♦ Centralizovani sistemi klimatizacije i grejanja, potpuno nezavisni od javnih objekata. Udaljenosti: ♦ Direktna veza sa Savskim šetalištem i rekom Savom, ♦ Direktna veza sa Kulom Beograd, ♦ 4 minuta hoda do tržnog centra Galerija, ♦ 5 minuta hoda do gradskog okruga Savamala, ♦ 10 minuta hoda do Savskog trga i buduće metro stanice, ♦ 15 minuta vožnje do aerodroma Nikola Tesla. Građevinska dozvola. Agencijska provizija 2%

Prikaži više
Lokacija
Lokacija na mapi
Klikni na mapu da je aktiviraš

Kontakt ograšivača

Prilikom poziva naglasite da ste oglas videli na sajtu ČUVARKUĆA Šifra oglasa: 21829
Pozovi oglašivača
Slični oglasi