ID 993368 • Prodaja •  Stan

Vračar, Krunski venac – Kumanovska, 105m2

Kumanovska, Krunska, Vračar, Beograd
Cena
485.000 €
4.619 €/m²
Podeli oglas
Osnovni podaci
Šifra oglasa:
22849
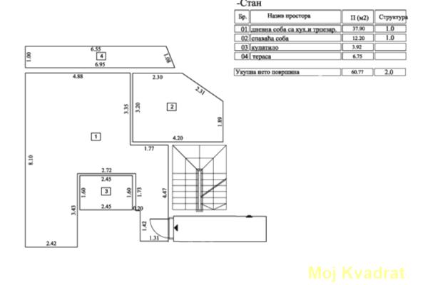
Kvadratura
105 m²
Broj Soba
4.0
Sprat
1
Ukupna spratnost
5
Tip objekta
Starogradnja
Godina izgradnje
1939
Datum
2026-01-16
Grejanje
CG
Opremljenost
Lodja Lift Podrum Interfon Parking
Dodatne informacije
Uknjižen Salonski
Opis

Vračar, Krunski venac – Kumanovska 4.0, 105m2 (dve lođe 9m2), 1/5, CG, lift, interfon, podrum, parking Stan salonskog tipa sa visinom plafona od 3 metara, smešten u lepoj predratnoj zgradi, koja se nalazi u blizini Krunske ulice. Luksuzno je renoviran i poseduje kamin i više ugradnih plakara. Dvostrano je orijentisan ka mirnom dvorištu i Kumanovskoj ulici, izuzetno svetao i funkcionalan. Sastoji se od predsoblja, velikog dnevnog boravka, kuhinje sa trpezarijom, tri spavaće sobe, dva kupatila i dve lođe. Ima veliki podrum i parking u dvorištu zgrade. Postoji mogućnost kupovine garažnog mesta površine 19m2 u obližnjoj zgradi, po ceni od 35.000 evra. Odmah useljiv! Uknjižen na 105m2. Agencijska provizija 2%. Agent Vesna Đurđević: 064/29-56-579 (licenca br. 1715)

Prikaži više
3D Prezentacija
Lokacija
Lokacija na mapi
Klikni na mapu da je aktiviraš

Kontakt ograšivača

Prilikom poziva naglasite da ste oglas videli na sajtu ČUVARKUĆA Šifra oglasa: 22849
Pozovi oglašivača
Slični oglasi